
ママ楽の家
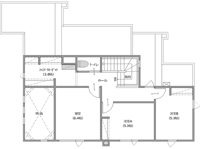
#玄関土間収納
#シューズクローゼット
#ファミリークローゼット
#ランドリールーム
#室内物干しスペース
#お帰り手洗い動線
#ママ楽動線
#回遊動線
#一か所で洗濯完結動線
#吹抜け
#火打ち梁
#フリースペース
#ワイド洗面
「帰ってきてからの動きを、とにかくラクにしたい」 そんな想いから、玄関の位置や視線の抜け方まで細かくこだわりながらプランを進めました。
玄関からは直接洗面へ行ける“ただいま動線”を確保し、 ファミリークローゼット、洗面、ランドリーまで1階でスムーズにつながる家事ラク動線を実現。 土間収納やパントリーは、生活感が出ないようあえて“見せない配置”にしています。
変形地という条件を最大限に活かしながら開放感あふれる吹抜けや、将来は洋室として使えるフリースペースも計画。
全館空調(断熱等級6)により、家中どこにいても快適に過ごせる住まいが完成しました。
デザインはハワイアンスタイルをベースに、木目とグレーカラーを組み合わせた落ち着きのある心地よい空間に仕上げています。
【見どころポイント】
・帰宅→洗面→着替え→洗濯まで1階完結のただいま動線
・洗う・干す・しまうが一直線の究極家事ラク動線
・変形地を活かしたムダのない間取り設計
・断熱等級6 × 全館空調で一年中快適
・木目×グレーが映えるハワイアンテイストの内観



画像はイメージです
【ギフトカード進呈について】
ご予約方法
STEP1 |
来場日の選択 本ページ内のご予約カレンダーより、ご都合の良い日時をお選びください。 |
|---|---|
STEP2 |
必要事項の入力 フォームに必要事項をご入力のうえ、送信してください。 |
STEP3 |
予約受付のご連絡 自動返信メールにて受付完了のお知らせが届きます。 |
お申し込みは個人情報保護方針に同意したものとします。
パソコンからのメール送信となります。
メール受信拒否設定をされている方は「@noreply.palcohome.co.jp」「@palcohome.co.jp」「@palcohome.com」「@palco-m.co.jp」のドメイン指定解除をお願いいたします。
もしメールが届いていない場合には、お手数ですがお問い合わせフォームよりご連絡下さい。
キャリアによる設定変更については、各サービスショップなどにご相談ください。
迷惑メールフォルダも併せてご確認をお願いいたします。
また、フリーメールによっては迷惑メールとみなされ、自動的に削除されてしまう場合がございます。
各サービスごとの「迷惑メール」または「受信拒否」設定にて「@noreply.palcohome.co.jp」「@palcohome.co.jp」「@palcohome.com」「@palco-m.co.jp」のドメイン指定解除の確認をお願い致します。
ドメイン解除前にお問合せいただいた場合、また、メールが届いてない場合には、お手数をおかけいたしますが「お問い合わせフォーム」よりご連絡ください。