
ママ楽の家 Free style
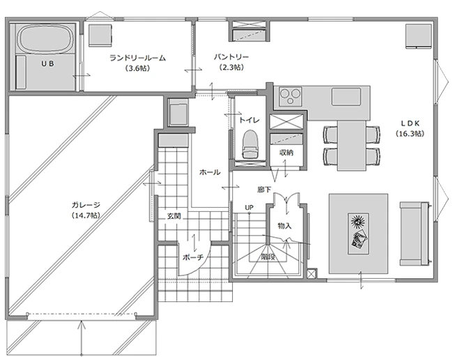
#ランドリールーム
#室内物干しスペース
#お帰り手洗い動線
#回遊動線
#ガレージ
ブラックで統一した落ち着きある住まい。
ご主人こだわりのガレージは、車高の高い車も停めやすいよう天井・シャッターを高めに設計。
雪や雨の日も濡れずに乗り降りでき、趣味の作業にも使える大人の秘密基地です。
キッチン横のパントリーからランドリールームへつながる家事ラク動線で、冬の洗濯もスムーズに。
広々カウンターのあるセミフラットキッチンは、家事後にひと息つけるお気に入りスペースに。
雪の多い地域でも暮らしやすい、趣味と家事が両立する住まいです。



画像はイメージです
【ギフトカード進呈について】
ご予約方法
STEP1 |
来場日の選択 本ページ内のご予約カレンダーより、ご都合の良い日時をお選びください。 |
|---|---|
STEP2 |
必要事項の入力 フォームに必要事項をご入力のうえ、送信してください。 |
STEP3 |
予約受付のご連絡 自動返信メールにて受付完了のお知らせが届きます。 |
お申し込みは個人情報保護方針に同意したものとします。
パソコンからのメール送信となります。
メール受信拒否設定をされている方は「@noreply.palcohome.co.jp」「@palcohome.co.jp」「@palcohome.com」「@palco-m.co.jp」のドメイン指定解除をお願いいたします。
もしメールが届いていない場合には、お手数ですがお問い合わせフォームよりご連絡下さい。
キャリアによる設定変更については、各サービスショップなどにご相談ください。
迷惑メールフォルダも併せてご確認をお願いいたします。
また、フリーメールによっては迷惑メールとみなされ、自動的に削除されてしまう場合がございます。
各サービスごとの「迷惑メール」または「受信拒否」設定にて「@noreply.palcohome.co.jp」「@palcohome.co.jp」「@palcohome.com」「@palco-m.co.jp」のドメイン指定解除の確認をお願い致します。
ドメイン解除前にお問合せいただいた場合、また、メールが届いてない場合には、お手数をおかけいたしますが「お問い合わせフォーム」よりご連絡ください。