
ママ楽の家 Free style
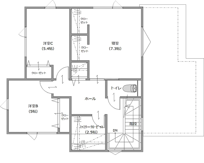
#玄関土間収納
#シューズクローゼット
#ファミリークローゼット
#ランドリールーム
#ママ楽動線
#回遊動線
#一か所で洗濯完結動線
奥さまと同じ出身地というご縁からはじまった家づくり。 「子育てしながらも、いつかお母さまと一緒に暮らせるように」と考えたお住まいは、洗面所を中心にぐるっと回れる回遊動線で、毎日の家事を効率よく。 キッチンから3歩で水まわりへ行けるスムーズさと、2階の大容量ファミリークローゼットで片付けもラクに。
インテリアはグレーを基調にしたホテルライクスタイルで、LDK入口には思わず写真を撮りたくなるインスタ映えスポットも。 外観は黒をベースにしたスタイリッシュなデザインで、見た目も暮らし心地も“ちょうどいい”理想の住まいになりました。




画像はイメージです
【ギフトカード進呈について】
ご予約方法
STEP1 |
来場日の選択 本ページ内のご予約カレンダーより、ご都合の良い日時をお選びください。 |
|---|---|
STEP2 |
必要事項の入力 フォームに必要事項をご入力のうえ、送信してください。 |
STEP3 |
予約受付のご連絡 自動返信メールにて受付完了のお知らせが届きます。 |
お申し込みは個人情報保護方針に同意したものとします。
パソコンからのメール送信となります。
メール受信拒否設定をされている方は「@noreply.palcohome.co.jp」「@palcohome.co.jp」「@palcohome.com」「@palco-m.co.jp」のドメイン指定解除をお願いいたします。
もしメールが届いていない場合には、お手数ですがお問い合わせフォームよりご連絡下さい。
キャリアによる設定変更については、各サービスショップなどにご相談ください。
迷惑メールフォルダも併せてご確認をお願いいたします。
また、フリーメールによっては迷惑メールとみなされ、自動的に削除されてしまう場合がございます。
各サービスごとの「迷惑メール」または「受信拒否」設定にて「@noreply.palcohome.co.jp」「@palcohome.co.jp」「@palcohome.com」「@palco-m.co.jp」のドメイン指定解除の確認をお願い致します。
ドメイン解除前にお問合せいただいた場合、また、メールが届いてない場合には、お手数をおかけいたしますが「お問い合わせフォーム」よりご連絡ください。