
ママ楽の家 Free style
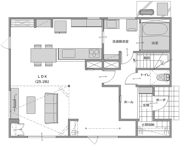
#玄関土間収納
#ママ楽動線
#回遊動線
#勾配天井
キッチンに立つと、リビングもダイニングもぜんぶ見渡せる。
おしゃべりをしながら料理をしたり、遊ぶ子どもを見守ったり。
そんな“家族が自然とつながる時間”を大切にした間取りです。
水まわりはキッチンから“3歩で行ける”近さにまとめ、料理の合間に洗濯をしたり、お子さんのお風呂を分担したりと、家事もしながら家族の様子をさりげなく見守れます。
さらに、床置きエアコンが床下からあたたかな空気を送り出し、冬でも足元からぽかぽか。
寒い日も家族みんなで快適に過ごせるリビングになりました。




画像はイメージです
【ギフトカード進呈について】
ご予約方法
STEP1 |
来場日の選択 本ページ内のご予約カレンダーより、ご都合の良い日時をお選びください。 |
|---|---|
STEP2 |
必要事項の入力 フォームに必要事項をご入力のうえ、送信してください。 |
STEP3 |
予約受付のご連絡 自動返信メールにて受付完了のお知らせが届きます。 |
お申し込みは個人情報保護方針に同意したものとします。
パソコンからのメール送信となります。
メール受信拒否設定をされている方は「@noreply.palcohome.co.jp」「@palcohome.co.jp」「@palcohome.com」「@palco-m.co.jp」のドメイン指定解除をお願いいたします。
もしメールが届いていない場合には、お手数ですがお問い合わせフォームよりご連絡下さい。
キャリアによる設定変更については、各サービスショップなどにご相談ください。
迷惑メールフォルダも併せてご確認をお願いいたします。
また、フリーメールによっては迷惑メールとみなされ、自動的に削除されてしまう場合がございます。
各サービスごとの「迷惑メール」または「受信拒否」設定にて「@noreply.palcohome.co.jp」「@palcohome.co.jp」「@palcohome.com」「@palco-m.co.jp」のドメイン指定解除の確認をお願い致します。
ドメイン解除前にお問合せいただいた場合、また、メールが届いてない場合には、お手数をおかけいたしますが「お問い合わせフォーム」よりご連絡ください。