株式会社パルコホーム
MENU
WORKS
パルコホームの家づくり
パルコホームの家づくりTOP
家づくりの流れ
安心技術と家の保証
紹介動画
家づくりコラム
LINEUP
商品ラインナップ
商品ラインナップTOP
ママ楽の家シリーズ
Unity
Do-Box
EVENT
イベント
イベントTOP
青森エリア
岩手エリア
宮城エリア
MODELHOUSE
ショールーム+モデルハウス
GALLERY
施工事例
ESTATE
不動産情報
RECRUIT
採用情報
COMPANY
会社情報
会社情報TOP
会社概要・沿革
SDGsへの取り組み
ZEH目標公約
店舗紹介
【岩手】レンタルスペース
【岩手】フットサルコート(休業中)
【宮城】LAUNDRYPALCO
CONTACT
お問い合わせ
お問い合わせTOP
ご質問・ご要望
資料請求
個別相談
プライバシーポリシー
資料請求
株式会社パルコホーム
home
>
イベント
> 青森市浪岡杉沢会場
EVENT
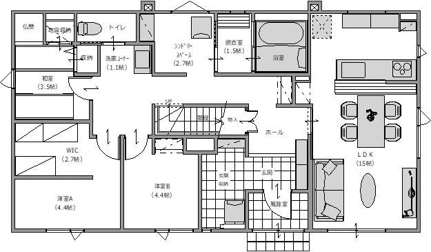
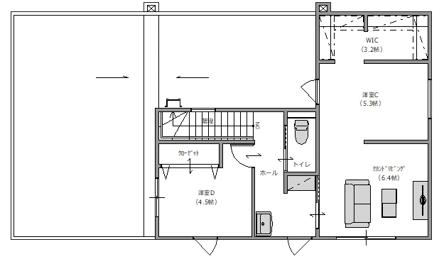
完成見学会
開催終了
このページの見学会は終了いたしました。
その他の見学会場は
こちらからご確認
をお願いいたします。
たくさんのご来場、ありがとうございました。
他のエリアを見る
青森つがるエリア
青森南部エリア
岩手県北エリア
岩手県南エリア
岩手沿岸エリア
宮城仙北エリア
宮城仙台・仙南エリア