
ママ楽の家 Free style
#玄関土間収納
#シューズクローゼット
#ランドリールーム
#室内物干しスペース
#回遊動線
#タタミコーナー
#書斎
ご家族みなさま本がお好きで、ゆったり・まったりとくつろぎながら過ごせるタタミコーナーのある空間をご希望されました。LDKに隣接した畳スペースは、家族それぞれが思い思いに“自分時間”を楽しめる心地よい場所に。
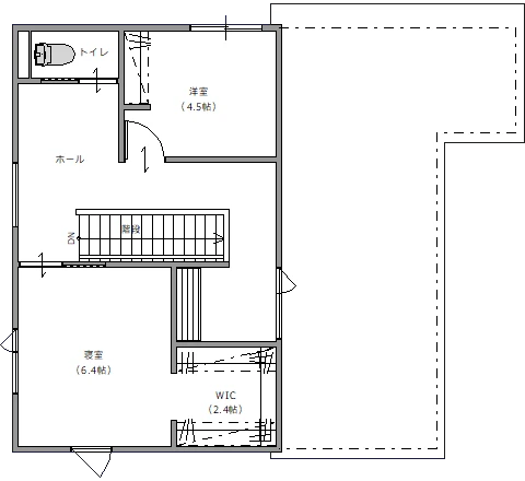
さらに2階には奥様専用の書斎も設け、趣味に集中できる空間も確保しました。
共働きのご家庭だからこそ、パントリー・ランドリー・WICをつなぐ回遊動線には特にこだわり、家事ラクを実現。毎日の時間を効率化し、浮いた時間を趣味や家族時間へ。暮らしの質を高める住まいが完成しました。
■見どころポイント
・水回りまで“3秒”のスムーズ動線
・洗濯→乾燥→WIC収納まで“2秒”の最短家事動線
・家族でくつろげるタタミコーナー付き20帖LDK
・2階には奥様専用の書斎スペース



画像はイメージです
【ギフトカード進呈について】
ご予約方法
STEP1 |
来場日の選択 本ページ内のご予約カレンダーより、ご都合の良い日時をお選びください。 |
|---|---|
STEP2 |
必要事項の入力 フォームに必要事項をご入力のうえ、送信してください。 |
STEP3 |
予約受付のご連絡 自動返信メールにて受付完了のお知らせが届きます。 |
お申し込みは個人情報保護方針に同意したものとします。
パソコンからのメール送信となります。
メール受信拒否設定をされている方は「@noreply.palcohome.co.jp」「@palcohome.co.jp」「@palcohome.com」「@palco-m.co.jp」のドメイン指定解除をお願いいたします。
もしメールが届いていない場合には、お手数ですがお問い合わせフォームよりご連絡下さい。
キャリアによる設定変更については、各サービスショップなどにご相談ください。
迷惑メールフォルダも併せてご確認をお願いいたします。
また、フリーメールによっては迷惑メールとみなされ、自動的に削除されてしまう場合がございます。
各サービスごとの「迷惑メール」または「受信拒否」設定にて「@noreply.palcohome.co.jp」「@palcohome.co.jp」「@palcohome.com」「@palco-m.co.jp」のドメイン指定解除の確認をお願い致します。
ドメイン解除前にお問合せいただいた場合、また、メールが届いてない場合には、お手数をおかけいたしますが「お問い合わせフォーム」よりご連絡ください。