
開催日2026年3月20日(金)~4月5日(日)(火・水曜除く)
開催時間10:00~17:00(完全予約制)
開催場所おいらせ町深沢会場・おいらせ町上久保会場
お問合せ先八戸支店(0178-51-9865)
平屋と2階建て、暮らし方の異なる2邸を一度に見学できる貴重な機会です。
間取りや動線、空間の広がり方を実際に体感しながら、ご家族に合った住まいを考えませんか?
見学できるのはこの2棟!

勾配天井が生む、4m超えの開放的LDK。機能的なテレビ裏収納も必見!
明るさを最優先に考え、LDKは勾配天井を採用。
高い位置に設けた開口部から、朝日がやさしく降り注ぐ空間となりました。
平屋・約30坪ながら、4LDK+豊富な収納を確保。
ホールや廊下を最小限に抑えつつ、個室はLDKから適度に距離を取り、家族それぞれのプライベートにも配慮した間取りです。
4LDK(+ランドリー+納戸+テレビ収納+土間収納:31.46坪)
シンプルスタイル



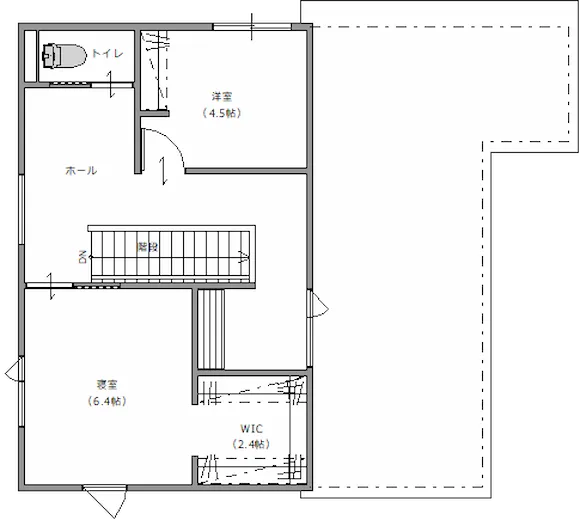
家事ラクを叶える回遊動線。タタミコーナーを備えた20帖の大空間LDK
家族みんなが本好きだからこそ、読書を楽しむ時間が自然に暮らしに溶け込む住まいを。
LDKに隣接したタタミコーナーは、ゆったり・まったりと本を開き、自分時間を過ごせる心地よい空間。2階には奥様専用の書斎を設け、静かに集中できる環境も確保。
共働きのライフスタイルに合わせ、パントリー・ランドリー・WICをつなぐ動線を工夫し、家事は効率的に。
時間にゆとりが生まれ、読書や趣味、家族とのひとときをより豊かに楽しめる住まいです。
3LDK(+ランドリー+書斎スペース:31.31坪)
シンプルスタイル



画像はイメージです
【ギフトカード進呈について】
ご予約方法
STEP1 |
来場日の選択 本ページ内のご予約カレンダーより、ご都合の良い日時をお選びください。 |
|---|---|
STEP2 |
必要事項の入力 フォームに必要事項をご入力のうえ、送信してください。 |
STEP3 |
予約受付のご連絡 自動返信メールにて受付完了のお知らせが届きます。 |
お申し込みは個人情報保護方針に同意したものとします。
パソコンからのメール送信となります。
メール受信拒否設定をされている方は「@noreply.palcohome.co.jp」「@palcohome.co.jp」「@palcohome.com」「@palco-m.co.jp」のドメイン指定解除をお願いいたします。
もしメールが届いていない場合には、お手数ですがお問い合わせフォームよりご連絡下さい。
キャリアによる設定変更については、各サービスショップなどにご相談ください。
迷惑メールフォルダも併せてご確認をお願いいたします。
また、フリーメールによっては迷惑メールとみなされ、自動的に削除されてしまう場合がございます。
各サービスごとの「迷惑メール」または「受信拒否」設定にて「@noreply.palcohome.co.jp」「@palcohome.co.jp」「@palcohome.com」「@palco-m.co.jp」のドメイン指定解除の確認をお願い致します。
ドメイン解除前にお問合せいただいた場合、また、メールが届いてない場合には、お手数をおかけいたしますが「お問い合わせフォーム」よりご連絡ください。